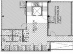
Excelente oportunidad de inversión en Plaza Depoint Jurica, Querétaro. Este local comercial de 53.85m² de construcción se ubica en el 4to piso, ofreciendo un espacio versátil y funcional. El local cuenta con una distribución óptima que incluye áreas de almacenamiento asignadas (bodegas), baños exclusivos (WC H y WC M), zona de circulación amplia de 107.99 m² con acceso directo a elevador y escaleras, garantizando fluidez y comodidad para clientes y personal. El uso de suelo comercial y de servicios permite una amplia gama de giros, como consultorios médicos, oficinas administrativas, academias, spas o boutiques, adaptándose a diversas necesidades empresariales. Estratégicamente ubicada en Paseo de Jurica, con acceso por Av. 5 de Febrero y Blvd. Bernardo Quintana, a sólo unos minutos de Antea, plaza DePoint cuenta con una ubicación privilegiada. ¡Aproveche esta gran oportunidad!
Actualizado el 22 de Septiembre, 2025 a las 01:17 pm
119 Visitas
¿Deseas enviar a uno de tus contactos registrados o a un número no registrado?
Ingresa el número al que deseas compartir el enlace:
